BRIM ARKITEKTAR skapa arkitektur við sosialum, mentanarligum, fíggjarligum, landafrøðiligum og umhvørvisligum atlitum.
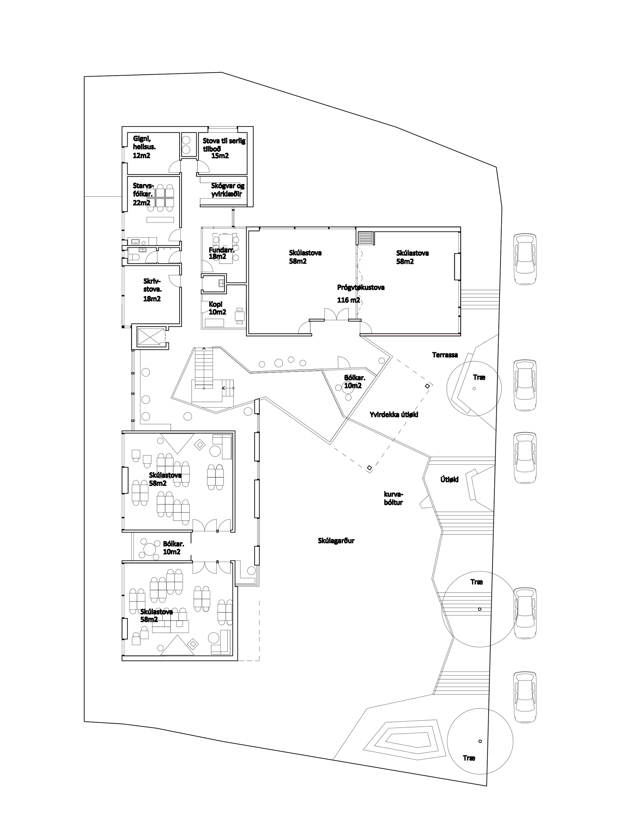
SANKTA FRANS SKÚLI - Fólkaskúli